Техническое задание
Документ, в котором отражены пожелания заказчика по планировке и дизайну пространства.
Техническое задание
Планировочные решения
Планы будущих помещений дома или квартиры, созданные на основе пожеланий клиента. На плане цветом выделены отдельные зоны (кухня, гостиная, спальня и т.д.), схематично отмечена расстановка мебели.
Планировочные решения
Стилистические коллажи
Это этап детальной разработки будущего интерьера на основе созданных ранее эскизов. Мы подбираем мебель, отделочные материалы, освещение, сантехнику, декор, идеально дополняющие друг друга и соответствующие вкусу и пожеланиям будущего владельца.
Стилистические коллажи
3D визуализации
Объемные эскизные решения, которые помогают почувствовать себя внутри будущего интерьера, более точно прочитать планировку помещения, увидеть и ощутить пространство, понять его форму и функциональность.
3D визуализации
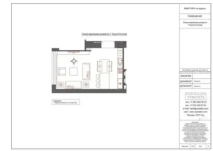
Рабочая документация
Состоит из планов, разверток и спецификаций. В них отражены все технические моменты: инженерные коммуникации, схемы монтажа электрики и сантехники, последовательность ремонта и использования отделочный материалов, виды и количество материалов и оборудования, которые понадобятся для ремонта. Это поможет грамотно провести тендер строительных бригад и избежать ошибок во время ремонта.
Рабочая документация
Ведомости отделки и мебели
Отдельный альбом с детально прописанным списком всех отделочных материалов, технического оборудования, мебели, сантехники и предметов декора, которые были заложены в дизайн-проект. Это поможет грамотно, без лишних затрат времени на поиски, закупить все необходимое для ремонта, и избежать покупки лишних материалов.
Ведомости отделки и мебели
Оставьте заявку
и получите пример дизайн-проекта


Пример премиального дизайн-проекта
Результатом работы над вашим интерьером становится книга с дизайн-проектом, в которой представлены все этапы работы для дальнейшей реализации интерьера










































































































































